McCue Renaissance- Galleria Hotel STUDY
Houston, Texas
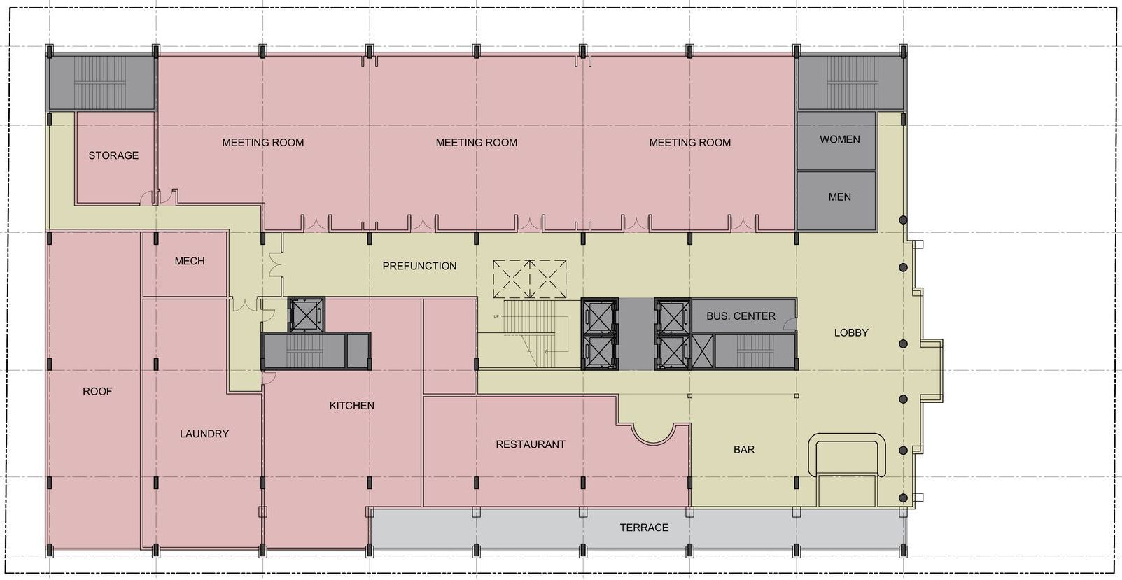
This hotel study focuses on a compact site on McCue Street in the prestigious Galleria/Uptown area of Houston. The development features 200 rooms/suites and includes a restaurant, a ballroom, and a parking garage. The hotel is situated atop two levels dedicated to lobby and ballroom spaces, reflecting the high value of Galleria real estate. The design, inspired by the elegance of New York City’s Art Deco skyscrapers, combines classic and modern aesthetics. This distinctive style is intended to stand out in the upscale Galleria neighborhood, offering a blend of luxury and sophistication while meeting the functional needs of guests and events.











