sALVATORI OFFICE building | TRINIDAD
Port of Spain, Trinidad and Tobago
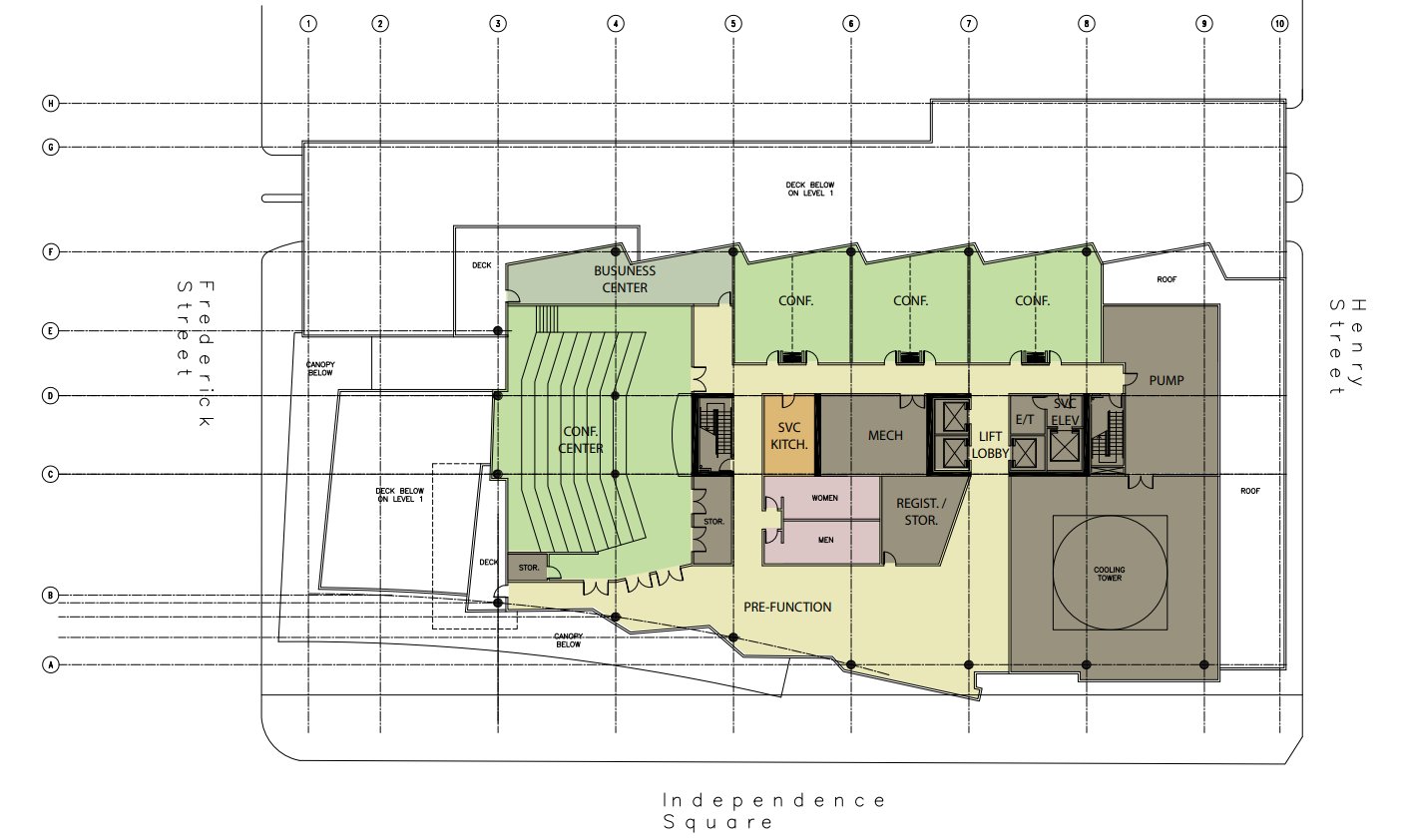
In the capital city of Trinidad and Tobago, Port of Spain, this mixed-use office tower also contains retail, two restaurants, and an upper level conference center. The location of the tower was to be located at the junction of Fredericks Street and Independence Square, Port of Spain’s main artery. The building design reflects the spirit and character of the country. Syncopated windows reflect the musical traditions of the islands, surrounded by a filigree of glass curtainwall reminiscent of the numerous palm fronds found everywhere.











