UT MD Anderson Cafeteria Expansion*
Houston, Texas
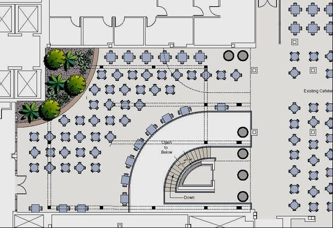
Design for expanding the cafeteria/food hall area of the central core of the Main Building at MD Anderson Hospital by enclosing an outdoor courtyard and interstitial space between wings. The design strove to keep or enhance the amount of sunlight reaching the lower levels. The glazed atrium creates a soaring, spiritual space for rotating aerial sculptures or mobiles.
*The project was designed by Warren Johnson while Vice President/Senior Designer at HOK Houston.








